• 638645161840791261_IMG_20240105_104238.jpg
  • 638645161983750237_IMG_20240105_104318.jpg
  • 638615575985869306_Dům čp.649 Palackého.jpg
  • 638622724514361885_20240918_133834.jpg
  • 638615576416464887_IMG_20240105_104329.jpg
  • 638615576515051904_IMG_20240105_104410.jpg
  • 638615576575985240_IMG_20240320_130513.jpg
  • 638980335446398783_Schema bytu.jpg
  • 638984543829621373_Vizualizace.jpeg
Ukázat/Skrýt parametry
Typ:
Aukce
Stav:
Ukončeno
Číslo:
646
Předpokládaný konec:
11.10.2024 20:21
Nejnižší podání:
8 250 Kč
Minimální příhoz:
300 Kč
Maximální příhoz
8 249 Kč
Výše jistoty:
5 000 Kč
Výše znaleckého posudku:
0 Kč
Kraj:
Pardubický
Město:
Lanškroun
Možnost podání předražku:
Ne
Podíl:
Registrace do:
08.10.2024 23:59
Prokázání totožnosti:
Ano
Prokázání totožnosti do:
08.10.2024 23:59
Složení jistoty:
Ano
Složení jistoty do:
08.10.2024 23:59
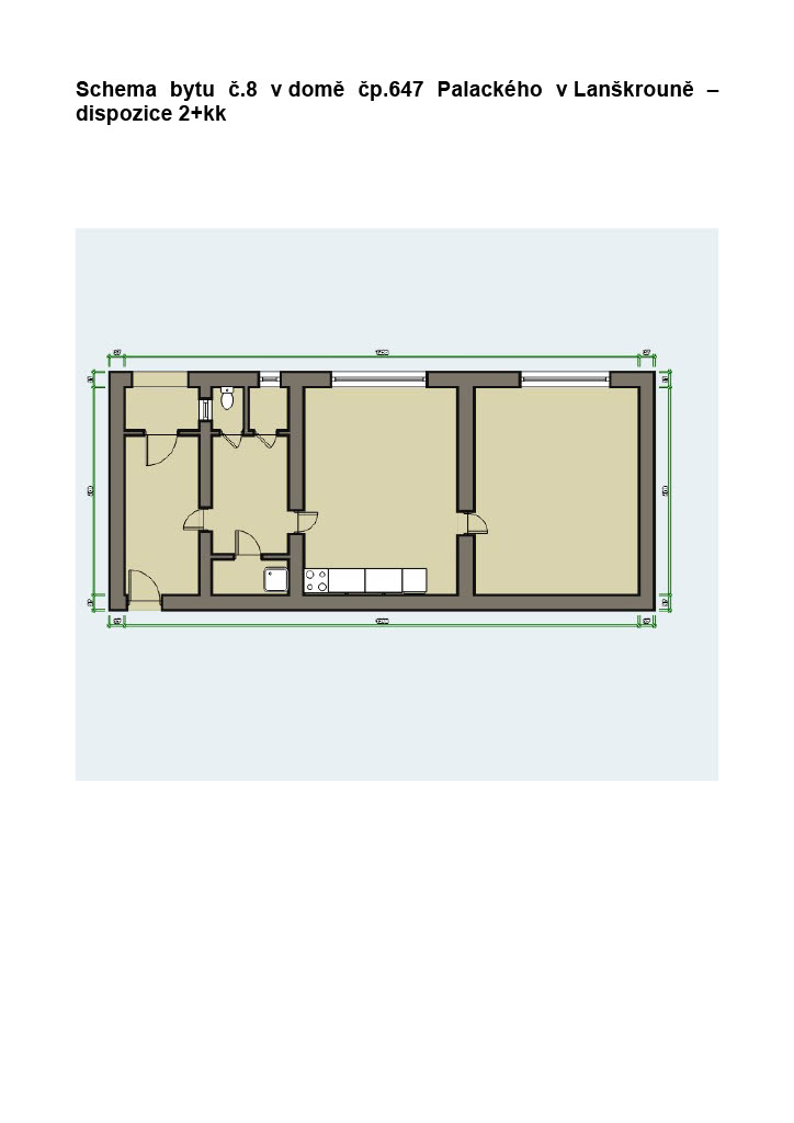
Dispozice
2+kk
Podlahová plocha
63,46 m2
Počet podlaží
4
Stav objektu
dobrý
Konstrukce budovy
cihlový
Termín prohlídky
02.10.2024 v 14.30 - 15 hodin (středa)
Odeslat provozovateli   Odeslat dražebníkovi

nájmu bytu

Vloženo: 10.09.2024 9:41:22 |  Číslo aukce: 646 17 350 Kč
Konec aukce Pátek 11.10.2024, 20:21

Popis předmětu aukce

   Prohlídka

   Jedná se o bytovou jednotku č.2 o velikosti  2+kk, která se nachází v přízemí domu čp.646, ulice Palackého v Lanškrouně. Byt má podlahovou plochu 63,46  m2 a skládá se z pokoje s  kuchyňským koutem (19,10 m2), ložnice (21,90 m2), koupelny (4,13 m2), WC       (1,37 m2), předsíně (9,70 m2), spíže (0,54 m2) a balkonu (2,52m2). Byt je po rekonstrukci. Nedaleko bytového domu se nachází autobusové nádraží, Základní škola B. Smetany,  supermarket PENNY a LIDL. Dům se nachází v klidné obytné lokalitě  

   Žadatelem o nájem bytu v majetku Města Lanškroun může být osoba, která:

  • je starší 18 let
  • je občanem České republiky a má trvalý pobyt na území města Lanškroun (k.ú. Lanškroun a Dolní Třešňovec) v délce minimálně 3 roky, nebo je v pracovním poměru u zaměstnavatele se sídlem či provozovnou na území města Lanškroun (nutno doložit potvrzením od zaměstnavatele) a to déle než 3 měsíce ke dni podání přihlášky
  • je občanem České republiky a má trvalý pobyt  ve správním obvodu obce s rozšířenou působností Lanškroun v délce minimálně 3 roky
  • je příslušníkem jiného členského státu Evropské unie a má v České republice potvrzen přechodný pobyt a místo pobytu hlášeno na území města Lanškroun v délce 3 roky nebo je zaměstnán u zaměstnavatele se sídlem či provozovnou na území města Lanškroun a to déle než 3 měsíce ke dni podání přihlášky
  • je příslušníkem jiného členského státu Evropské unie a má v České republice potvrzen přechodný pobyt a místo pobytu hlášeno ve správním obvodu obce s rozšířenou působností Lanškroun  v  délce minimálně 3 roky.
  • nemá žádné vlastnické nebo spoluvlastnické a jemu obdobné právo k bytu, k bytovému domu nebo rodinnému domu a ani je neužívá právem odpovídající věcnému břemeni
  • je bezdlužná vůči městu a jeho organizacím

Místo konání

Městský úřad Lanškroun

Vyhlašovatel

Referentka odboru investic a majetku
Michaela Vídeňská
nám. J.Marka Marků 12
563 01 Lanškroun
Česká republika
465385249
michaela.videnska@lanskroun.eu