• 638222600688172926_20230607_085817.jpg
  • 638980994803820261_Bytový dům označení bytu.jpg
  • 639010439252180365_Schema bytu.jpg
  • 638980203181839715_zahrada za domem.jpg
  • 638980203576500276_chodba.jpg
  • 638980203679930708_chodba-balkon.jpg
  • 638980203811952922_pokoj + kuchyňská linka.jpg
  • 638980203922882859_pokoj s kuchyňským koutem.jpg
  • 638980204022407302_ložnice 2.jpg
  • 638980204436754000_koupelna se sprchovým koutem.jpg
  • 638980204710016581_sprchový kout.jpg
  • 638980204844851131_WC.jpg
  • 639010443123634651_vnitroblok.jpg
Ukázat/Skrýt parametry
Typ:
Aukce
Stav:
Vyhlášena
Číslo:
647
Předpokládaný konec:
27.01.2026 20:00
Nejnižší podání:
8 893 Kč
Minimální příhoz:
300 Kč
Maximální příhoz
8 892 Kč
Výše jistoty:
5 000 Kč
Výše znaleckého posudku:
0 Kč
Kraj:
Pardubický
Město:
Lanškroun
Možnost podání předražku:
Ne
Podíl:
Registrace do:
22.01.2026 23:59
Prokázání totožnosti:
Ano
Prokázání totožnosti do:
22.01.2026 23:59
Složení jistoty:
Ano
Složení jistoty do:
22.01.2026 23:59
Dispozice
2+kk
Počet podlaží
4
Stav objektu
dobrý
Konstrukce budovy
cihlový
Termín prohlídky
14.01.2026 v době od 14.30 do 15.00 hodin
Odeslat provozovateli   Odeslat dražebníkovi

nájmu bytu

Vloženo: 11.12.2025 9:47:25 |  Číslo aukce: 647 8 893 Kč
Začátek aukce Úterý 27.01.2026, 10:00

Podmínky účasti v aukci

status
Registrován
a přihlášen
do systému
status
Přihláška
podána
status
Totožnost
ověřena
status
Jistota
složena
status
Přihláška
schválena

Popis předmětu aukce

   Prohlídka

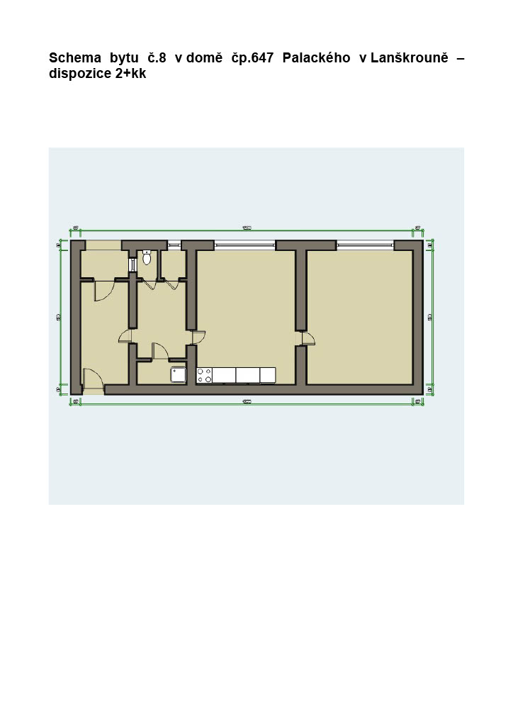
Město Lanškroun nabízí k pronájmu  bytovou jednotku č. 8 o velikosti 2+kk v 2 NP v domě čp. 647 v ulici Palackého v Lanškrouně o celkové podlahové ploše cca 68 m2, která se skládá z pokoje s kuchyňským koutem ( 19,50 m2), ložnice (22,10 m2),  předsíně (13,20 m2), koupelny ( 3,58 m2), WC (1,14 m2), spíže (1,20 m2), balkonu (2,74 m2) a sklepu (12,64 m2).  Byt se nachází v domě bez výtahu. V bytě byla provedena kompletní rekonstrukce. Bytový dům se nachází v klidně lokalitě nedaleko autobusového nádraží, v blízkosti domu je Základní škola B.Smetany a školní jídelna Madoret.

 

 Žadatelem o nájem bytu v majetku Města Lanškroun může být osoba, která:

  • je starší 18 let
  • je občanem České republiky a má trvalý pobyt na území města Lanškroun (k.ú. Lanškroun a Dolní Třešňovec) v délce minimálně 3 roky, nebo je v pracovním poměru u zaměstnavatele se sídlem či provozovnou na území města Lanškroun (nutno doložit potvrzením od zaměstnavatele) a to déle než 3 měsíce ke dni podání přihlášky
  • je občanem České republiky a má trvalý pobyt  ve správním obvodu obce s rozšířenou působností Lanškroun v délce minimálně 3 roky
  • je příslušníkem jiného členského státu Evropské unie a má v České republice potvrzen přechodný pobyt a místo pobytu hlášeno na území města Lanškroun v délce 3 roky nebo je zaměstnán u zaměstnavatele se sídlem či provozovnou na území města Lanškroun a to déle než 3 měsíce ke dni podání přihlášky
  • je příslušníkem jiného členského státu Evropské unie a má v České republice potvrzen přechodný pobyt a místo pobytu hlášeno ve správním obvodu obce s rozšířenou působností Lanškroun  v  délce minimálně 3 roky.
  • nemá žádné vlastnické nebo spoluvlastnické a jemu obdobné právo k bytu, k bytovému domu nebo rodinnému domu a ani je neužívá právem odpovídající věcnému břemeni
  • je bezdlužná vůči městu a jeho organizacím

 

Místo konání

Městský úřad Lanškroun

Vyhlašovatel

Referentka odboru investic a majetku
Michaela Vídeňská
nám. J.Marka Marků 12
563 01 Lanškroun
Česká republika
465385249
michaela.videnska@lanskroun.eu