• 639074459927107449_koupelna WC.jpeg
  • 639074459993352934_Koupelna sprchový kout.jpeg
  • 639074460064754306_koupelna umyvadlo skríňka.jpeg
  • 639074460179902695_spíž.jpeg
  • 639074460337391951_kuchyňská linka.jpeg
  • 639074465043945431_bytový dům označený byt.jpg
  • 639074465208152971_bytový dům zezadu (2).jpeg
  • 639074465474384788_boční pohled.jpeg
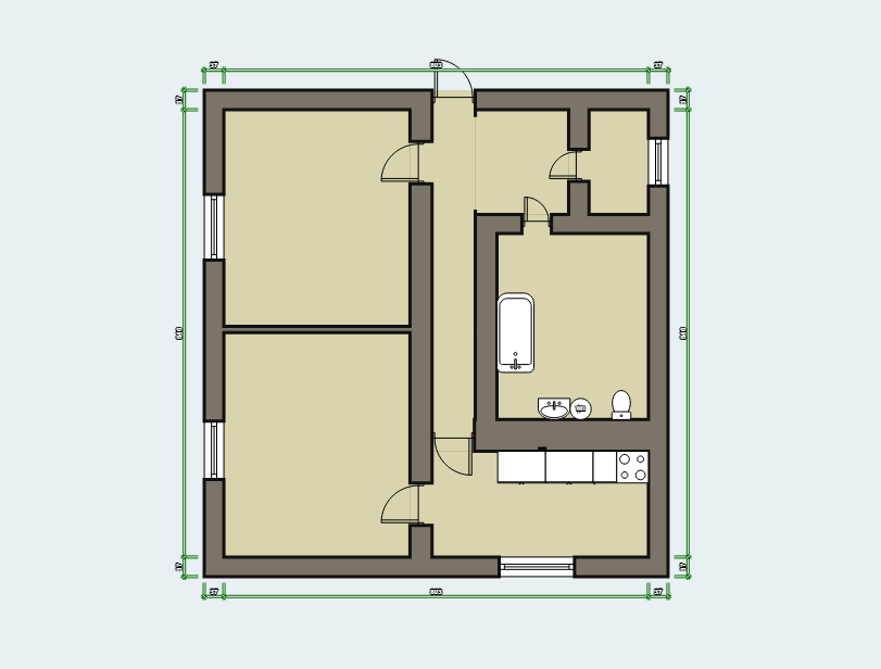
  • 639074484780253563_Schema bytu.png
  • 638851563216116061_20250610_103237.jpg
Ukázat/Skrýt parametry
Typ:
Aukce
Stav:
Vyhlášena
Číslo:
742
Předpokládaný konec:
20.03.2026 20:00
Nejnižší podání:
7 436 Kč
Minimální příhoz:
300 Kč
Maximální příhoz
7 435 Kč
Výše jistoty:
5 000 Kč
Výše znaleckého posudku:
0 Kč
Kraj:
Pardubický
Město:
Lanškroun
Možnost podání předražku:
Ne
Podíl:
Registrace do:
18.03.2026 23:59
Prokázání totožnosti:
Ano
Prokázání totožnosti do:
18.02.2026 23:59
Složení jistoty:
Ano
Složení jistoty do:
18.02.2026 23:59
Dispozice
2+1
Podlahová plocha
57,20 m2
Počet podlaží
2
Stav objektu
dobrý
Konstrukce budovy
cihlový
Termín prohlídky
11.03.2026 v 14.30 - 15 hodin
Odeslat provozovateli   Odeslat dražebníkovi

nájmu bytu

Vloženo: 23.02.2026 12:31:22 |  Číslo aukce: 742 7 436 Kč
Začátek aukce Pátek 20.03.2026, 10:00

Podmínky účasti v aukci

status
Registrován
a přihlášen
do systému
status
Přihláška
podána
status
Totožnost
ověřena
status
Jistota
složena
status
Přihláška
schválena

Popis předmětu aukce

   Prohlídka

Město Lanškroun nabízí k pronájmu bytovou jednotku č. 3 o velikosti 2+1 ve 2.NP domu čp.742 v ulici Zborovská v Lanškrouně. Byt má podlahovou plochu 57 m2, která se skládá z kuchyně (10,30 m2), pokoje (14,50 m2), ložnice (14,90 m2), předsíně (5,10 m2), koupelny s WC (5,30 m2), spíže (1,10 m2) a sklepu. Nedaleko bytového domu se nachází autobusové nádraží, Základní škola B. Smetany, supermarket PENNY a LIDL. Dům se nachází v klidné obytné lokalitě.  Byt je po celkové rekonstrukci.

 

Žadatelem o nájem bytu v majetku Města Lanškroun může být osoba, která:

  • je starší 18 let
  • je občanem České republiky a má trvalý pobyt na území města Lanškroun (k.ú. Lanškroun a Dolní Třešňovec) v délce minimálně 3 roky, nebo je v pracovním poměru u zaměstnavatele se sídlem či provozovnou na území města Lanškroun (nutno doložit potvrzením od zaměstnavatele) a to déle než 3 měsíce ke dni podání přihlášky
  • je občanem České republiky a má trvalý pobyt  ve správním obvodu obce s rozšířenou působností Lanškroun v délce minimálně 3 roky
  • je příslušníkem jiného členského státu Evropské unie a má v České republice potvrzen přechodný pobyt a místo pobytu hlášeno na území města Lanškroun v délce 3 roky nebo je zaměstnán u zaměstnavatele se sídlem či provozovnou na území města Lanškroun a to déle než 3 měsíce ke dni podání přihlášky
  • je příslušníkem jiného členského státu Evropské unie a má v České republice potvrzen přechodný pobyt a místo pobytu hlášeno ve správním obvodu obce s rozšířenou působností Lanškroun  v  délce minimálně 3 roky.
  • nemá žádné vlastnické nebo spoluvlastnické a jemu obdobné právo k bytu, k bytovému domu nebo rodinnému domu a ani je neužívá právem odpovídající věcnému břemeni
  • je bezdlužná vůči městu a jeho organizacím

Místo konání

Městský úřad Lanškroun

Vyhlašovatel

Referentka odboru investic a majetku
Michaela Vídeňská
nám. J.Marka Marků 12
563 01 Lanškroun
Česká republika
465385249
michaela.videnska@lanskroun.eu